WATERLIFE ADMINISTRATIVE BUILDING

Client Waterlife for trading & contracting
Location Nasr City Cairo
Categories Interior, Architecture
Typology Administrative
Timeline 2026
Size >1000sqm
Status In Progress

Waterlife Administrative Building

The Waterlife Admin Building project is a renovation and facade transformation of an existing administrative building. The design focuses on redefining the building’s identity through a contemporary facade system while reorganizing the interior spaces to create a more efficient and modern workplace environment.

.

The architectural approach was based on introducing a layered facade system that creates depth, shadow, and rhythm across the elevation. A modular grid was developed to organize the facade elements, ensuring consistency, constructability, and cost efficiency while giving the building a strong visual identity.

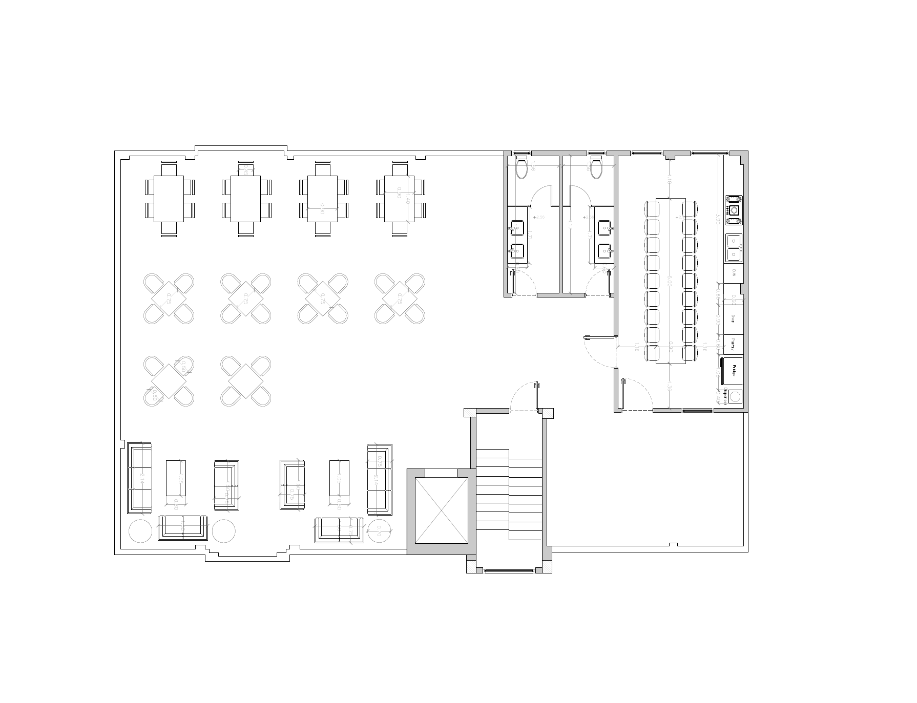
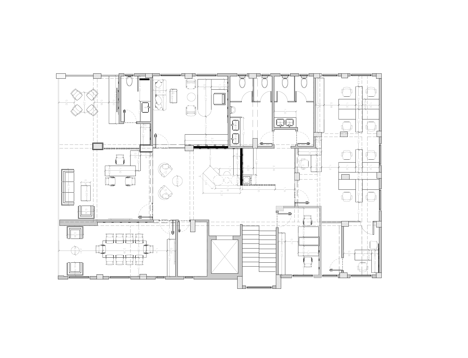
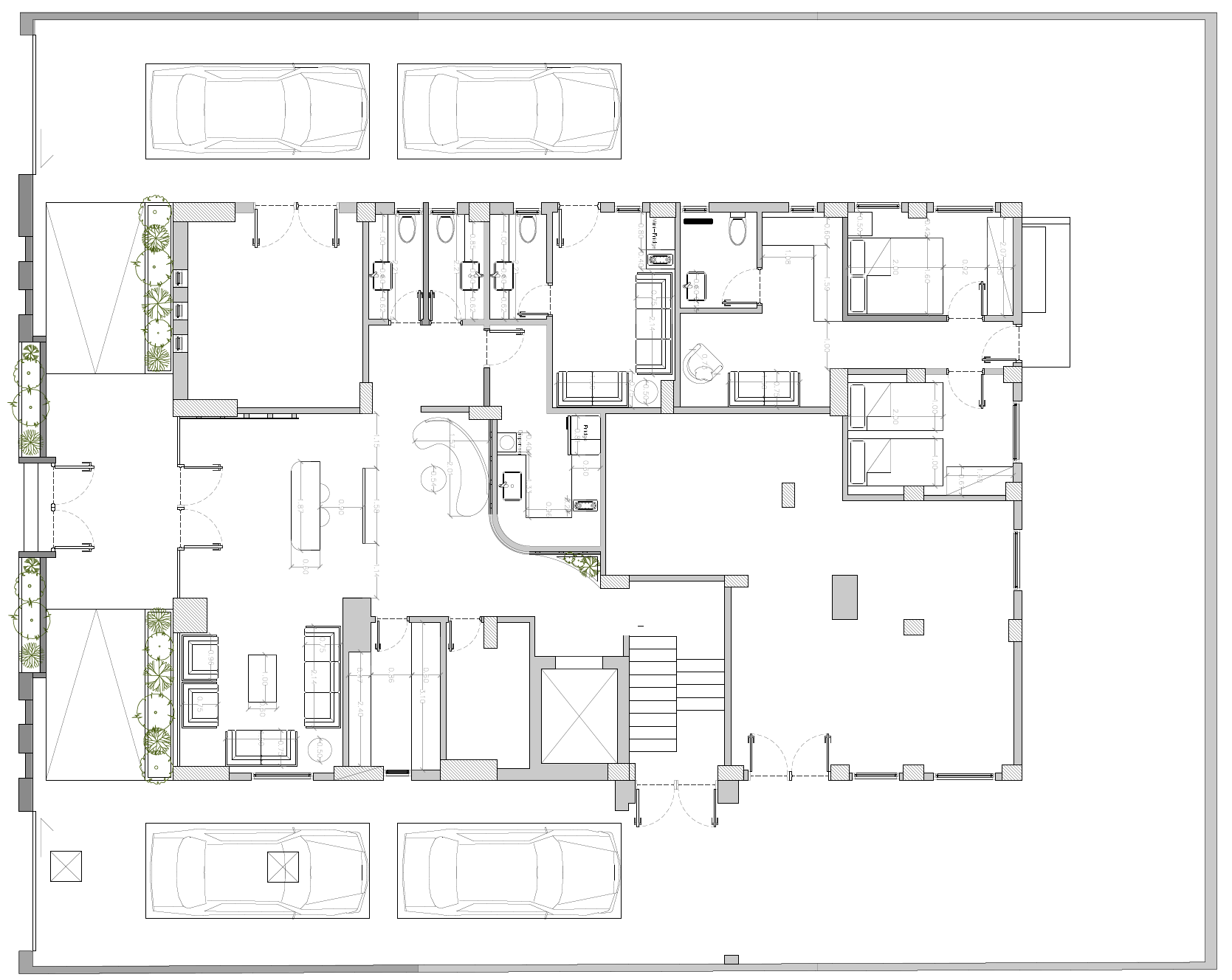
Internally, the building was redesigned to improve circulation, workspace functionality, and spatial clarity. The layout includes administrative offices, meeting rooms, open workspaces, and service areas organized around clear circulation zones to enhance workflow and user experience.

.

The interior design follows a contemporary and minimal language that complements the architectural facade, using clean lines, neutral materials, and functional layouts to create a calm and efficient working environment.

The staff kitchen was designed as a shared space that encourages employees to gather and start the day together. The client’s main requirement was to create a common breakfast area that promotes interaction and a sense of community within the workplace. The space was designed to feel warm and welcoming rather than purely functional, using simple materials, clean lines, and a layout that allows multiple users to comfortably occupy the space at the same tim

I would like to My Name is and my email is and i can be reached on +20